Технические характеристики
|
Наименование показателя |
Значение |
|
Номинальная теплопроизводительность, МВт (Гкал/ч) |
0,2 (0,17) |
|
Вид сжигаемого топлива |
Газ, жидкое топливо |
|
Расчетный вид топлива |
Природный газ ГОСТ 5542 |
|
Расчетный расход топлива, м3/ч |
21,6 |
|
Коэффициент полезного действия, %, не менее |
91 |
|
Рабочее давление воды, Мпа (кгс/см2) |
0,6 (6,0) |
|
Расчетное давление воды, Мпа (кгс/см2) |
0,6 (6,0) |
|
Пробное давление воды, Мпа (кгс/см2) |
0,9 (9,0) |
|
Температура на входе в котле, °С |
70 |
|
Температура воды на выходе из котла, °С |
95 |
|
Гидравлическое сопротивление, Мпа(кгс/см2) |
0,04 (0,4) |
|
Расход воды через котел, м3/ч, не менее |
6,9 |
|
Поверхность нагрева котла, м2 |
11,3 |
|
Объем топочной камеры, м3 |
0,72 |
|
Температура уходящих газов, °С, не более |
210 |
|
Аэродинамическое сопротивление котла, не более, Па |
105 |
|
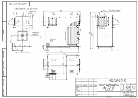
Масса блока котла, кг, не более |
800 |
|
Срок службы, лет, не менее |
10 |
Комплектация
В стандартную комплектацию входят приборы безопасности, котельный блок, арматура и КИП. По согласованию возможна дополнительная комплектация вентилятором и горелкой.
Комплект поставки
|
Наименование |
Кол-во, шт. |
|
Блок котла в легкой изоляции |
1 |
|
Рама котла стальная |
1 |
|
Затвор дисковый Ду-80, Ру-10 |
2 |
|
Кран шаровый Ду20 |
8 |
|
Кран трехходовой 11б18бк, Ду-15, Ру-10 |
2 |
|
Манометр МП3-У, Ру-10 |
2 |
|
Термометр в оправе ТТЖ-М 0-150 |
2 |
|
Клапан предохранительный Ду 25 |
2 |
|
Техническая документация |
1 компл |






