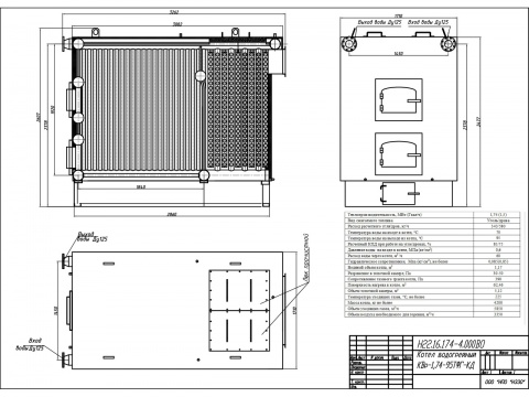
Технические характеристики КВр-1,74-95ТФГ-КД
|
Теплопроизводительность, МВт (Гкал/ч) |
1,74 (1,5) |
|
Вид сжигаемого топлива |
Уголь/дрова |
|
Расход расчетного угля/дров, кг/ч |
343/580 |
|
Температура воды на входе в котел, °С |
70 |
|
Температура воды на выходе из котла, °С |
95 |
|
Расчетный КПД при работе на угле/дровах, % |
81/75 |
|
Давление воды на входе в котел, МПа (кг/см2) |
0,6 |
|
Расход воды через котел, м3 /ч |
60 |
|
Гидравлическое сопротивление, Мпа (кг/см2), не более |
0,085(0,85) |
|
Водяной объем котла, м3 |
1,17 |
|
Разряжение в топочной камере, Па |
30-50 |
|
Сопротивление газового тракта котла, Па |
390 |
|
Поверхность нагрева в котле, м2 |
62,46 |
|
Объем топочной камеры, м3 |
5,12 |
|
Температура уходящих газов, °С, не более |
225 |
|
Масса котла, кг не более |
4200 |
|
Объем уходящих газов, м3/ч |
5850 |
|
Объем воздуха необходимого для горения, м3/ч |
3350 |
Комплект поставки КВр-1,74-95ТФГ-КД
| Наименование |
Ед.изм. |
Кол-во |
|
Блок котла в легкой изоляции |
шт. |
1 |
|
Рама котла стальная |
шт. |
1 |
|
Затвор дисковый Ду-125 |
шт. |
2 |
|
Кран шаровый Ду20 |
шт. |
7 |
|
Кран трехходовой 11б18бк, Ду-15, Ру-10 |
шт. |
2 |
|
Манометр МП3-У, Ру-10 |
шт. |
2 |
|
Термометр в оправе ТТЖ-М 0-150 |
шт. |
2 |
|
Клапан предохранительный, Ду50 |
шт. |
2 |
|
Вентилятор ВЦ14-46 №2,5 (4х3000) |
шт. |
1 |
|
Воздуховод L=100 мм |
шт. |
1 |
|
Техническая эксплуатационная документация |
комплект |
1 |





