Горелки газовые ГГ-1 и ГГ-2

ЦЕНА ГОРЕЛКИ : по запросу

liniya_4.png   (Горелки ГМ, Горелки ГМГ, Горелки Г-1,0КГорелки ГГ-1, ГГ-2, Горелки ГГ-3, РМГ-3м, РГМГ-3м, Горелки ГГ-4, РГМГ-4, ГГ-7, РГМГ-7, Горелки РГМГ-10,20,30, Форсунка Р-200мРотационные форсунки Р-400, Р-700, Горелки РМГ-1м(01), РМГ-1м(02)Горелки РМГ-1м, РМГ-2мГорелки РМГ-1, РМГ-1п, РМГ-2, РМГ-2пГорелки РГМГ-1м, 2м,3мГорелки РГМГ-1, РГМГ-2, РГМГ-1п, РГМГ-2пустройство топочноефорсунка паровая щелеваяфорсунки механические и паромеханическиезапально-защитное устройств ЗЗУ-350горелки ГБГгорелки ГБЖ).liniya_4.png

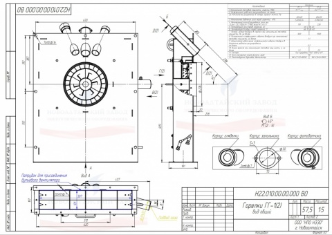
Газовые горелки  ГГ-1 и ГГ-2 предназначены для сжигания природного газа в топках паровых и водогрейных котлов типов Е или КВ-ГМ соответствующей тепловой мощности. По отдельному заказу поставляется исполнительный механизм " Belimo " для плавного или степенчатого регулирования положения шиберной  заслонки и запально-защитное устройство. Рекомендуется использовать ЗЗУ L = 350мм.

Внутри короба гозовых горелок ГГ-1 и ГГ-2  расположены шибер, завихритель и коллектор газовый. Показывающие приборы и датчики контроля давления воздуха и газа подсоединяются к соответствующим штуцерам и ниппелям. На коробе имеются патрубки для установки запальника и фотодатчика, а также смотровое окно для визуального контроля пламени. Патрубок запальника имеет отверстия для поступления воздуха к запальнику. Завихритель воздуха выполнен в виде цилиндрических обечаек (наружной и внутренней), между которыми расположены лопатки, установленные под определенным углом к оси горелки.

В горелке ГГ-1 весь  воздух поступает для горения через завихритель, в горелке ГГ-2 часть потока воздуха поступает помимо завихрителя через кольцевую щель, образованную внешней обечайкой завихрителя и газовым коллектором.

Газовая часть газовых горелок ГГ-1 и ГГ-2  выполнена в виде кольцевого коллектора с газоподводящим патрубком. Внутри коллектора имеется перегородка, предназначенная для равномерного распределения газа через 18 газовыпускных отверстий.

ОСНОВНЫЕ ТЕХНИЧЕСКИЕ ХАРАКТЕРИСТИКИ ГОРЕЛОК ГГ-1 И ГГ-2

 

Наименование

Значение

ГГ-1

ГГ-2

1 Номинальная тепловая мощность  горелки, МВт

1,1+0,11-0,05

2,2+0,22-0,11

2 Коэффициент рабочего регулирования, не менее

4

2а Номинальное разрежение в камере горения (топке), Па

20±20

20±20

3 Номинальное давление газа перед горелкой,  кПа

1,22±0,24

3,15±0,63

4 Номинальный расход природного газа при Qpн = 33,3 МДж/м3 (7960 ккал/м3), м3

119

238

5 Температура газа перед горелкой, оС

от 0 до 40

6 Температура воздуха перед горелкой, оС

от 10 до 40

7 Потери напора воздуха в горелке при номинальной тепловой мощности, Па, не более

 

500

 

1500

8 Минимальный коэффициент избытка воздуха при номинальной тепловой мощности, не более

 

1,1

9 Допускаемое увеличение коэффициента избытка воздуха в диапазоне рабочего регулирования, не более

 

0,2

10 Содержание оксида углерода в сухих продуктах сгорания (при a= 1,0) во всем диапазоне рабочего регулирования, мг/м3, не более
- при сжигании газа в котлах паровых/водогрейных

 

 

117/130

11 Содержание оксидов азота в сухих продуктах сгорания в пересчете на NO2 (при a= 1,0), при номинальной тепловой мощности, мг/м3, не более
- при сжигании газа в котлах паровых/водогрейных

 

 

180/250

12 Потери тепла от химической неполноты сгорания в диапазоне рабочего регулирования,%, не более

 

0,1

14 Длина факела при номинальной тепловой мощности, м, не более

1,3

2,5

15. Габаритные размеры, мм, не более
длина
ширина
высота

 

220
743
851

16 Масса, кг, не более

60

17 Топливо

Газ природный ГОСТ 55542-87