Водогрейный котёл КВа-0,5 в качестве топлива может использовать сжиженный и природный газ, нефть, мазут или дизтопливо. В зависимости от вида топлива, котёл комплектуется соответствующим горелочным устройством. Горелка монтируется с фронта на специальный лаз. Монтаж-демонтаж горелочного устройства прост и не вызывает затруднений при обслуживания котла.
Водогрейный котел КВа-0,5 тепловой мощностью 500 кВт предназначен для выработки тепловой энергии для систем отопления, горячего водоснабжения и вентиляции промышленного и бытового назначения.
Котел КВа-0,5 работает с принудительной циркуляцией воды при рабочем давлении до 0,6 МПа (6 кгс/см2) и температурой нагрева вода до 95ºС, может работать в закрытых и открытых системах и предназначен для работы с непрерывным расходом воды.
Котел КВа-0,5 устанавливается в районных и производственных отопительных котельных в роли главного источника отопления. Котел КВа-0,5 работает с уравновешенной тягой, которую обеспечивает вентилятор блочной горелки и дымосос.
Котел КВа-0,5 состоит из опорной рамы, горелки и трубной системы в легкой изоляции и обшивке.
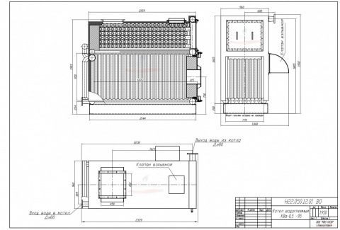
В состав трубной системы котла КВа-0,5 входит топочная камера и конвективный блок. Конвективный блок располагается над топочной камерой.
Для очитки конвективных пакетов на фронте котла установлен съемный прочистной люк.
На котле установлено два взрывных клапана для защиты от взрыва горючих газов: на боковой поверхности котла – для защиты топочной камеры; на потолке – для защиты конвективного блока.
Горелка подбирается в зависимости от вида и параметров сжигаемого топлива.
Горелка устанавливается на распашной топочный фронт, выполненный из огнеупорного бетона.
Котел КВа-0,5 поставляется одним блоком и не требует дополнительных работ по теплоизоляции и обшивке котла на месте установки. Котёл КВа-0,5 благодаря максимальному сгоранию топлива, отличается повышенной производительностью, эффективностью, экономичностью и, как следствие, быстрой окупаемостью.
ТЕХНИЧЕСКИЕ ХАРАКТЕРИСТИКИ КОТЛА КВа-0,5
|
Наименование показателя
|
Значение
|
|
Номинальная теплопроизводительность, МВт (Гкал/ч)
|
0,5 (0,43)
|
|
Расчетный вид топлива
|
Природный газ
|
|
Теплота сгорания расчетного топлива, ккал/кг
|
8830
|
|
Расчетный расход топлива, м3/ч
|
53,7
|
|
Коэффициент полезного действия, %, не менее
|
92
|
|
Рабочее давление воды, Мпа (кгс/см2)
|
0,6 (6,0)
|
|
Расчетное давление воды, Мпа (кгс/см2)
|
0,6 (6,0)
|
|
Пробное давление воды, Мпа (кгс/см2)
|
0,9 (9,0)
|
|
Температура на входе в котле, °С
|
70
|
|
Температура воды на выходе из котла, °С
|
95
|
|
Гидравлическое сопротивление, Мпа
|
0,075 (0,75)
|
|
Расход воды через котел, м3/ч, не менее
|
17,2
|
|
Водяной объем котла, м3
|
0,5
|
|
Поверхность нагрева котла, м2
|
21,02
|
|
Объем топочной камеры, м3
|
1,32
|
|
Температура уходящих газов, °С, не более
|
220
|
|
Аэродинамическое сопротивление котла, Па
|
310
|
|
Давление газов в топке при номинальной теплопроизводительности, кПа, не более
|
1,0
|
|
Коэффициент избытка воздуха на номинальной, не более
|
1,15
|
|
Масса блока котла, кг, не более
|
1950
|
|
Срок службы, лет, не менее
|
10
|
Комплектация
В стандартную комплектацию входят приборы безопасности, котельный блок, арматура и КИП. По согласованию возможна дополнительная комплектация вентилятором и горелкой.
Комплект поставки
|
Наименование
|
Кол.
|
|
Блок котла в легкой изоляции
|
1
|
|
Рама котла
|
1
|
|
Затвор дисковый Ду-80
|
2
|
|
Кран шаровый Ду20
|
8
|
|
Кран трехходовой 11б18бк, Ду-15, Ру-10
|
2
|
|
Манометр МП3-У, Ру-10
|
2
|
|
Термометр в оправе ТТЖ-М 0-150
|
2
|
|
Клапан предохранительный 17С28НЖ, Ду50
|
2
|