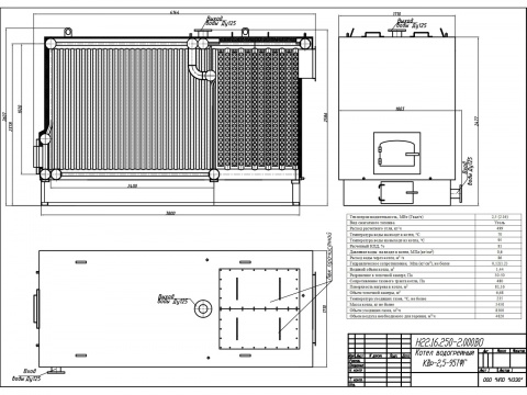
Технические характеристики КВр-2,5-95ТФГ
|
Теплопроизводительность, МВт (Гкал/ч) |
2,5 (2.16) |
|
Вид сжигаемого топлива |
Уголь |
|
Расход расчетного угля, кг/ч |
499 |
|
Температура воды на входе в котел, °С |
70 |
|
Температура воды на выходе из котла, °С |
95 |
|
Расчетный КПД, % |
81 |
|
Давление воды на входе в котел, МПа (кг/см2) |
0,6 |
|
Расход воды через котел, м3 /ч |
86 |
|
Гидравлическое сопротивление, Мпа (кг/см2), не более |
0,12(1.2) |
|
Водяной объем котла, м3 |
1,44 |
|
Разряжение в топочной камере, Па |
30-50 |
|
Сопротивление газового тракта котла, Па |
480 |
|
Поверхность нагрева в котле, м2 |
81,16 |
|
Объем топочной камеры, м3 |
6,68 |
|
Температура уходящих газов, °С, не более |
235 |
|
Масса котла, кг не более |
5450 |
|
Объем уходящих газов, м3/ч |
8300 |
|
Объем воздуха необходимого для горения, м3/ч |
4820 |
Комплект поставки КВр-2,5-95ТФГ
| Наименование |
Ед.изм. |
Кол-во |
|
Блок котла в легкой изоляции |
шт. |
1 |
|
Рама котла стальная |
шт. |
1 |
|
Затвор дисковый Ду-125 |
шт. |
2 |
|
Кран шаровый Ду20 |
шт. |
7 |
|
Кран трехходовой 11б18бк, Ду-15, Ру-10 |
шт. |
2 |
|
Манометр МП3-У, Ру-10 |
шт. |
2 |
|
Термометр в оправе ТТЖ-М 0-150 |
шт. |
2 |
|
Клапан предохранительный, Ду80 |
шт. |
2 |
|
Вентилятор ВЦ14-46 №2,5 (5,5х3000) |
шт. |
1 |
|
Воздуховод L=100 мм |
шт. |
1 |
|
Техническая эксплуатационная документация |
комплект |
1 |





